Apartment, Paris
Transformation of the interior
Client: Private
Built area: 37 m2
Location: Paris
Year: 2012
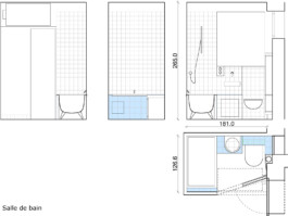
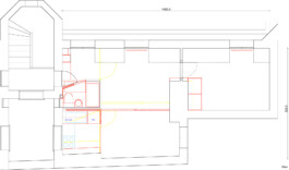
For this 37m2 apartment in a typical 1880 Paris building, the intention was to articulate an open space in such a way as to divide it into smaller spaces when required. Whenever possible, antique elements such as the parquet and the floor tiles in the kitchen were kept and refurbished, while a new interplay of volumes and sliding walls was introduced. The small size of the flat presented the challenge to design every single element precisely, as with the articulation between the entryway and the bathroom, which has a ground area of less than 1m2, to create the sense of a generous space.














Apartment, Paris
Transformation of the interior
Client: Private
Built area: 37 m2
Location: Paris
Year: 2012
For this 37m2 apartment in a typical 1880 Paris building, the intention was to articulate an open space in such a way as to divide it into smaller spaces when required. Whenever possible, antique elements such as the parquet and the floor tiles in the kitchen were kept and refurbished, while a new interplay of volumes and sliding walls was introduced. The small size of the flat presented the challenge to design every single element precisely, as with the articulation between the entryway and the bathroom, which has a ground area of less than 1m2, to create the sense of a generous space.